Wentylator promieniowy WA-K jednobiegowy

Wentylator promieniowy WA-K jednobiegowy

Wentylatory promieniowe typu WA przystosowane są do przetłaczania powietrza czystego lub zanieczyszczonego o maksymalnym stężeniu zapylenia do 0,3g/m3 i temperaturze +40ºC. Znajdują zastosowanie w instalacjach wentylacyjnych (nawiewnych lub wywiewnych) w przemyśle, rolnictwie, budownictwie, a także w różnych rodzajach obiektów użyteczności publicznej jak: laboratoria, magazyny, szpitale, szkoły, stołówki, baseny, oczyszczalnie ścieków itp. Wentylatory typu WA wykonane są z twardego PVC

  • Stopień ochrony: IP 55
  • Klasa izolacji : F
  • Wykonanie:
    – Standardowe: + 40ºC
    – Specjalne: + 60ºC
  • Dostępne kolory: biały i szary
  • Malowanie osłony silnika na dowolny kolor wg wskaźnika RAL

Skocz do:

Do pobrania

Opis

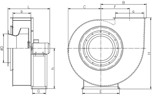
Wymiary gabarytowe:

 

Układy wylotu:

Parametry techniczne:

Charakterystyki przepływowe i akustyczne:

WA 10 – K

Poziomy dźwięku wentylatora WA 10 – K dla poszczególnych częstotliwości

WA 14 – K

Poziomy dźwięku wentylatora WA 14 – K dla poszczególnych częstotliwości

WA 16 – K

Poziomy dźwięku wentylatora WA 16 – K dla poszczególnych częstotliwości

WA 18 – K

Poziomy dźwięku wentylatora WA 18 – K dla poszczególnych częstotliwości

Parametry silników:

Dodatkowe informacje

Ilość biegów

Jednobiegowy

Napięcie

230V, 400V

Wersja

Chemoodporna

Silnik

Bez regulacji, Do regulacji