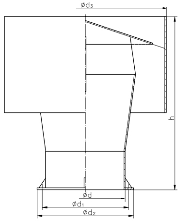
Wywietrzaki cylindryczne typu A stosuje się w instalacjach wentylacyjnych typu grawitacyjnego. Są to elementy, które pod wpływem wiatru stwarzają różnicę ciśnień powodującą wypływ powietrza z przewodów wentylacyjnych lub bezpośrednio z pomieszczeń. Wywietrzaki cylindryczne montowane są na podstawach dachowych lub przewodach wentylacyjnych.
- Dostępne kolory: biały i szary
- Tabela odporności chemicznej dostępna w zakładce do pobrania
Skocz do:






