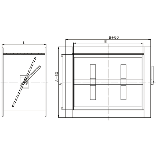
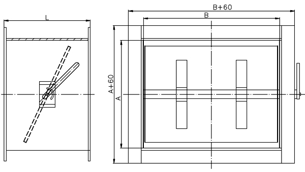
Przepustnice typu A
– jednopłaszczyznowe
Przepustnice jednopłaszczyznowe typu A służą do regulacji przepływu powietrza w instalacjach wentylacyjnych z przewodami o przekroju prostokątnym.
Dostępne kolory: biały i szary
Tabela odporności chemicznej dostępna w zakładce do pobrania




